Kay & Burton
675 Orrong Road, Toorak
Get in contact now to be the only buyer to receive our report on this property.
5 Bed.
3 Bath.
2 Car Garage.
635m² Land.
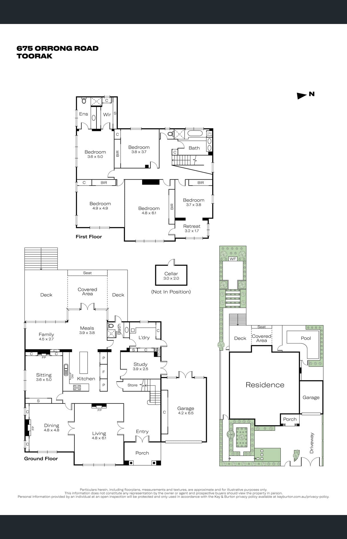
Property Details
675 Orrong Road, Toorak
Perfectly positioned just a short stroll from the vibrant Toorak Village, this immaculate circa 1930’s home offers a combination of period charm, grand proportions, and modern family functionality — all set behind secure gates and framed by beautifully landscaped gardens.
From the moment you step inside, the home captivates with its stunning ornate ceiling and wall details and a wide timber staircase that anchors the elegant entrance foyer. Warm timber floors flow throughout, setting the tone for a home rich in character yet thoughtfully updated for contemporary living.
Designed for growing families, the expansive layout features five generously sized bedrooms — all located on the upper level — ensuring privacy and space for everyone. The main with walk in robe and private marble ensuite whilst the guest bedrooms are serviced by a large main bathroom with separate toilet. Downstairs, a flexible floorplan includes a separate home office, formal lounge and dining rooms, a rumpus room, and a spacious open-plan living and dining zone.
Key Information
Vendor: Kay & Burton
Address: 675 Orrong Road, Toorak
Bedrooms: 5 beds
Bathrooms: 3 baths
Garage Space: 2 car spaces
Land: 635 m²